Créé en 2005 par Vincent Mazet, PBO Immobilier accompagne une clientèle haut de gamme dans l'achat, la vente et la gestion de biens d'exception.
Laurence Berdoati, experte en valorisation patrimoniale, a rejoint le cabinet en 2018 après avoir dirigé Valeur et Respect du Patrimoine.
Le cabinet est réputé pour gérer les projets immobiliers des personnalités médiatiques en leur servant d'écran.
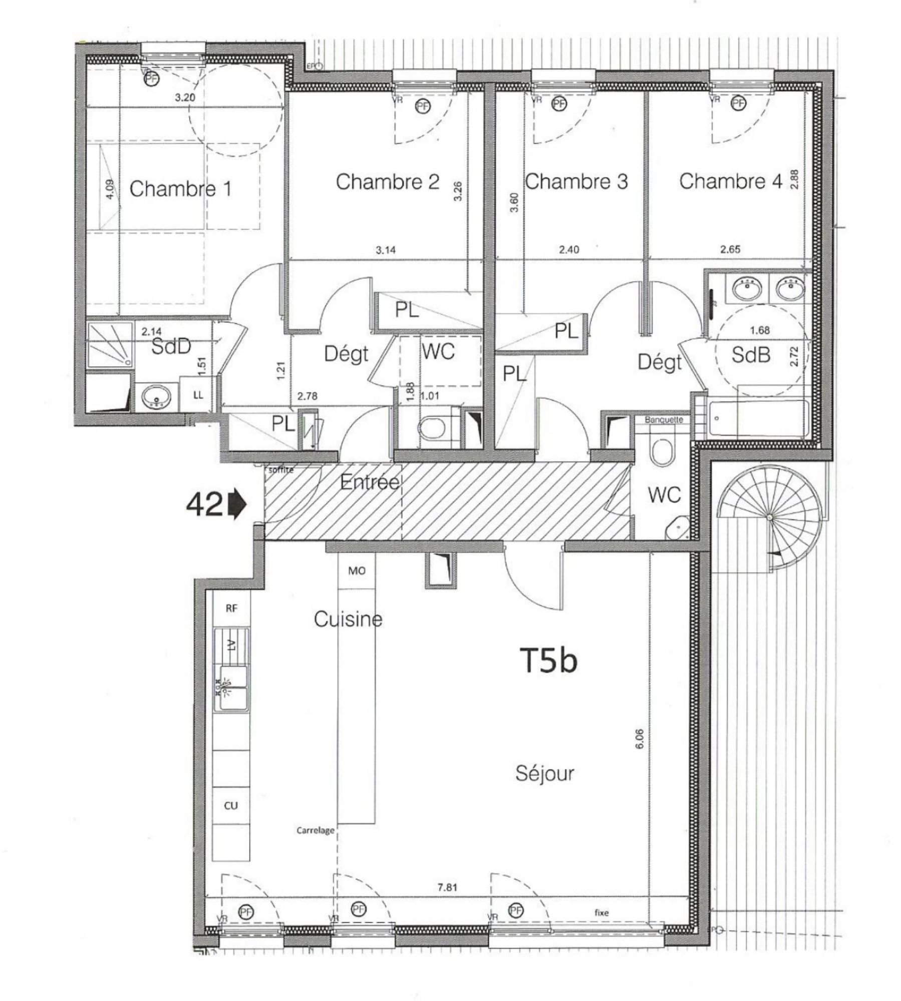
| Pièce | Surface (m²) |
|---|---|
| Entrée | 7,45 |
| Séjour + Cuisine | 46,41 |
| WC 1 | 1,73 |
| Sas 1 / Placard | 4,77 |
| Salle de bains | 4,72 |
| Chambre 1 | 8,70 |
| Chambre 2 / Placard | 9,68 |
| Sas 2 / Placard | 5,31 |
| WC 2 | 2,33 |
| Chambre 3 / Placard | 12,18 |
| Chambre 4 | 13,05 |
| Salle d’eau | 2,58 |
| Surface totale Carrez | 118,91 m² |
Surface mesurée par un professionnel.
| Terrasse | Surface (m²) |
|---|---|
| Terrasse 1 – PLEIN PIED | 132,88 |
| Terrasse 2 – TOIT TERRASSE | 128,15 |